Обяви За нас Контакти
Продава КЪЩА
град Варна, м-т Евксиноград
495 000 €
968 135.85 лв.

(1 414 €, 2 765.54 лв./m2)
Не се начислява ДДС
История на цената
Коригирана в 11:43 на 16 декември, 2025 год.
Обявата е посетена 277 пъти.
Площ:
350 m2
Двор:
564 m2
Строителство:
Тухла, Въведен в експлоатация

Описание на имота:


Лукозна Къща с Морска Панорама ! Висококачествено строителство ! ВИК и Асфалтов Достъп !

реф: 73975 - www.novdom1.bg

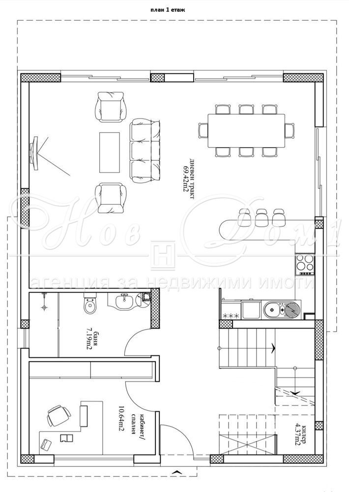
Имотът представлява : Първи Етаж - Коридор, Просторен дневен тракт 70м2, Спалня. Баня и тоалет заедно.

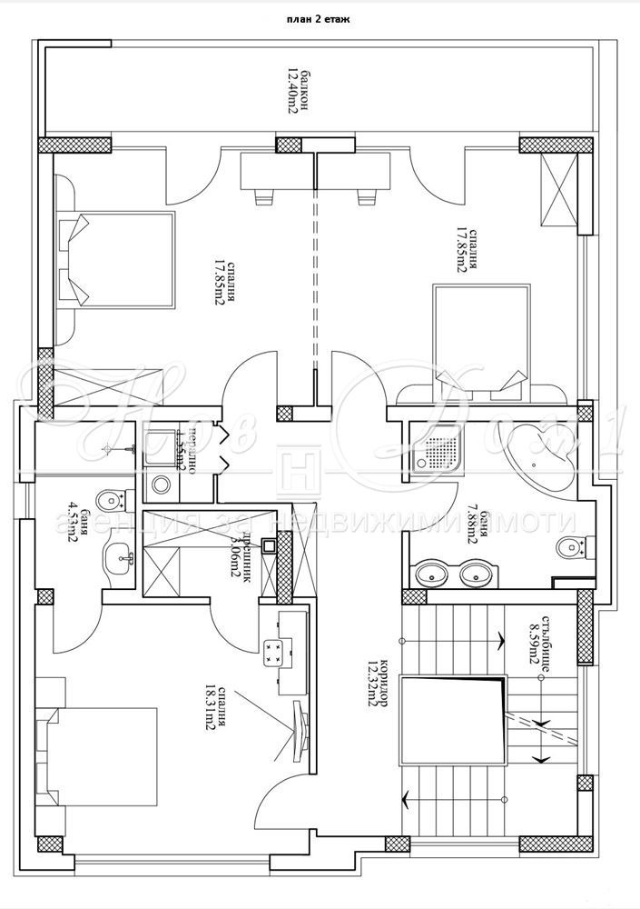
Втори етаж - Родителска спалня със собствена баня и тоалет и дрешник. Детска спалня 18м2. Спалня за гости 18м2.Втора баня и тоалет на етажа. Тераси.Перално/Килер.

Трети Етаж - Спалня/Кабинет, Тоалет.Тераса.

4бр.паркоместа.Къщата е с прекрасна морска панорама.

Състояние: Имотът се издава съгласно БДС Екстериорна блиндирана врата. Под : нивелирана замазка подготвена за полагане на гранитогрес, паркет или настилка по Ваш избор. Стени : машинно обработена гипсова мазилка с турбозол подготвена за боя или тапет по ваш избор. Мокри Помещения : ръчно обработена циментова мазилка подготвена за полагане на фаянс и теракота .ВиК инсталация на тапа . ЕЛ инсталация : контакти, ключ и фасонки. МДФ интериорни врати и ПВЦ дограма .

Отлична Локация - 350м пешеходно разстояние от автобусна спирка.На 700м до Резиденция Евксиноград , спирка и главен път Варна - Златни пясъци

Строителство: Висококачествено Ново Строителство стоманобетонна конструкция посрещащи всички норми за сеизмичност съгласно БДС . Монолитна зидария изпълнена с най-висок клас.

Състояние - Издава се по БДС. Възможност за довършване до КЛЮЧ !

Екстри: Възможно преустроиство спрямо желанията на клиента.Включена в канализация, асфалтов достъп до имота.

Забележка: Горепосочените са одобрени от собственика и публикувани с неговото съгласие ! Имотът се издава пригоден за живеене което го прави идеален за инвестиция и отдаване под наем ! Снимките са проект за обзавеждане и подредба на имота.

НОВ ДОМ 1 : Компанията разполага с : Юридически Отдел - извършващ всички необходими юридически и технически проверки на имота, организира всички етапи на сделката до нейното финализиране с нотариално прехвърляне на имота. Кредитен Отдел - съдействащ за отпускане на банков кредит при възможно най-добри условия за клиента, като избора на банка се определя спрямо нуждите и възможностите на клиента. Строително-Ремонтен Отдел - гарантиращ при нужда цялостен ремонт на вашето жилище до ключ при най-изгодни условия и цени.

Консултант Недвижими Имоти : Силвия Георгиева'-0876/ 600 880

Особености
Тухла
С паркинг
Видео наблюдение
Контрол на достъпа
Саниран
Възможност за дан. кредит
За контакт:
0876600880
Брокер:
Силвия Георгиева
0876/600880 052/460 496
Още оферти от брокера: Продава | Дава под наем | Купува | Наема
Агенция:
НОВ ДОМ 1
052 999 669
НОВ ДОМ 1  logo
Медал за прослужено време
В imot.bg от 2011 г.
novdom1.imot.bg
Адрес:
област Варна, гр. Варна, бул. Вл. Варненчик 81 ет2 /бул 8-ми Приморски полк 83 ет1
http://www.novdom1.bg
ИЗПРАТИ ЗАПИТВАНЕ
ИЗПРАТИ ЗАПИТВАНЕТО

Продава КЪЩА
град Варна, м-т Евксиноград
Обява: 1j173936186168885

495 000 €
968 135.85 лв.
История на цената
(1 414 €, 2 765.54 лв./m2)

Не се начислява ДДС
ЗАПАЗИ ОБЯВАТА

Местоположение: град Варна, м-т Евксиноград

Допълнителни данни за имотите в района и сравнение с други райони

Покажи

Период

* Средните цени са определени чрез медианна стойност